Ningbo Richge Technology Co, Ltd.
Ningbo Richge Technology Co, Ltd.
Mga produkto
ZW7-40.5KV Mataas na Boltahe 3 Poles Lumipat 35KV H.V. Panlabas na vacuum circuit breaker
  • ZW7-40.5KV Mataas na Boltahe 3 Poles Lumipat 35KV H.V. Panlabas na vacuum circuit breakerZW7-40.5KV Mataas na Boltahe 3 Poles Lumipat 35KV H.V. Panlabas na vacuum circuit breaker

ZW7-40.5KV Mataas na Boltahe 3 Poles Lumipat 35KV H.V. Panlabas na vacuum circuit breaker

Model:ZW7-40.5
Ang ZW7-40.5 panlabas na high-boltahe na vacuum circuit breaker ay nagpatibay ng isang natatanging dinisenyo split poste at isang lubos na maaasahang mekanismo ng pagpapatakbo. Ang aparato ay pangunahing ginagamit sa medium-boltahe na overhead line grids ng linya para sa paghati at pagsasama-sama ng pag-load ng kasalukuyang, labis na labis na kasalukuyang, at short-circuit kasalukuyang.   ZW7-40.5 outdoor medium-voltage vacuum circuit breaker is athree-phase AC 50Hzoutdor high-voltage electrical equipment tis suitable for the control and protection of 20-40.5kV power transmission and distribution systems,it can also be used in the occasions of section circuit breakersand switched capacitor banks,this product can be used with piecewise controller,the reclosing device can realize intelligent sectioning at pag -redose ng kontrol ng sistema ng kuryente.a kasalukuyang transpormer ay maaaring maidagdag para sa pagsukat at proteksyon.Ang singsing circuit breaker ay nilagyan ng isang tagsibol o electromagnetic actuator, na may maaasahang mekanikal na pagganap at madalas na operasyon; walang panganib ng apoy at pagsabog

ZW7-40.5KV Mataas na Boltahe 3 Poles Lumipat 35KV H.V. Panlabas na vacuum circuit breaker

Ang ZW7-40.5 panlabas na medium-boltahe na vacuum circuit breaker ay isang three-phase AC 50Hz panlabas na high-boltahe na de-koryenteng kagamitan; Ito ay angkop para sa kontrol at proteksyon ng 20-40.5kV na paghahatid ng kapangyarihan at mga sistema ng pamamahagi; Maaari rin itong magamit sa mga okasyon ng mga seksyon ng circuit breaker at nakabukas na mga bangko ng kapasitor; Ang produktong ito ay maaaring magamit gamit ang piecewise controller, ang aparato ng reclosing ay maaaring mapagtanto ang matalinong pag -sectioning at pag -reclosing ng kontrol ng sistema ng kuryente. Ang isang kasalukuyang transpormer ay maaaring maidagdag para sa pagsukat at proteksyon. Ang singsing circuit breaker ay nilagyan ng isang tagsibol o electromagnetic actuator, na may maaasahang pagganap ng mekanikal at madalas na operasyon; Walang panganib ng apoy at pagsabog.


Ang mga pangunahing katangian ng circuit breaker ay mahusay na pagsira sa pagganap, vacuum arc, mataas na kapasidad ng pagsira, mekanikal na buhay hanggang sa 10000 beses, simpleng istraktura, pagpapanatili ng libre, at mahabang pag -iingat ng siklo; Mahusay na pagganap ng pagkakabukod at malakas na kakayahan sa polusyon ng anti; Ang mga kasalukuyang transformer ay maaaring mai-install ayon sa mga kinakailangan ng customer, na may katumpakan ng pagsukat ng hanggang sa 0.2 na antas, na nagpapagana ng pakikipag-ugnay sa three-phase. Pamantayan: IEC 62271-100


Mga detalye ng produkto

● ZW7-40.5 panlabas na medium-boltahe na vacuum circuit breaker ay isang three-phase AC 50Hz panlabas na high-boltahe na kagamitan sa kuryente; Ito ay angkop para sa kontrol at proteksyon ng 20-40.5kV na paghahatid ng kapangyarihan at mga sistema ng pamamahagi; Maaari rin itong magamit sa mga okasyon ng mga seksyon ng circuit breaker at nakabukas na mga bangko ng kapasitor; Ang produktong ito ay maaaring magamit gamit ang piecewise controller, ang aparato ng reclosing ay maaaring mapagtanto ang matalinong pag -sectioning at pag -reclosing ng kontrol ng sistema ng kuryente. Ang isang kasalukuyang transpormer ay maaaring maidagdag para sa pagsukat at proteksyon. Ang singsing circuit breaker ay nilagyan ng isang tagsibol o electromagnetic actuator, na may maaasahang pagganap ng mekanikal at madalas na operasyon; Walang panganib ng apoy at pagsabog.

● Ang mga pangunahing katangian ng circuit breaker ay mahusay na pagsira sa pagganap, vacuum arc, mataas na kapasidad ng pagsira, mekanikal na buhay hanggang sa 10000 beses, simpleng istraktura, walang pagpapanatili, at mahabang pag -iingat ng pagpapanatili; Mahusay na pagganap ng pagkakabukod at malakas na kakayahan sa polusyon ng anti; Ang mga kasalukuyang transformer ay maaaring mai-install ayon sa mga kinakailangan ng customer, na may katumpakan ng pagsukat ng hanggang sa 0.2 na antas, na nagpapagana ng pakikipag-ugnay sa three-phase.

● Pamantayan: IEC 62271-100.


Istraktura ng circuit breaker

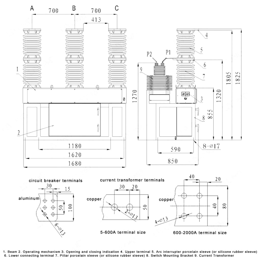
Ang ZW7-40.5 panlabas na high-boltahe na vacuum circuit breaker ay pangunahing binubuo ng integrated poste, kasalukuyang transpormer, mekanismo ng operating at kahon. Ang ganitong uri ng circuit breaker ay ng miniaturized na disenyo, at ang shell ay gawa sa de-kalidad na kahon ng bakal. Ang mga kasalukuyang transformer ay maaaring mapili ayon sa mga pangangailangan ng gumagamit. ZW7-40.5 Panlabas na high-boltahe na vacuum circuit breaker at pagtutugma ng kombinasyon ng intelihenteng kontrol. Ang operasyon ng pagbubukas at pagsasara ng switch ay maaaring maisakatuparan sa lokal, at maaari rin itong malayong pinatatakbo sa pamamagitan ng interface ng komunikasyon. Ang iba pang impormasyon ng circuit breaker ay maaari ring maipadala sa control center, at ang channel ng komunikasyon ay maaaring pumili ng cable, optical fiber, GPRS/CDMA, GSM, atbp.


Mga tampok

1. Sobrang mataas na pagiging maaasahan

2. Ganap na walang pagpapanatili sa buong buhay nito

3. May mataas na mekanikal at elektrikal na buhay

4. Ang buong makina ay maliit sa laki, ilaw sa timbang, madaling i -install


Pangunahing impormasyon.





Teknikal na parameter





Dimensional na pagguhit:




Mga kondisyon sa kapaligiran


1.ambient na temperatura ng hangin: -30ºC ~+60ºC;

2. Altitude: hindi hihigit sa 2000 metro;

3. Pressure ng hangin: Hindi hihigit sa 700pa (naaayon sa bilis ng hangin 34m/s)

4. Ang panginginig ng boses o ground motion mula sa labas ng switchgear at ang mga kagamitan sa kontrol ay hindi mapapabayaan;

5. Antas ng Kontaminasyon: IV;

6. Tempeature ng imbakan -40ºC ~+85ºC.

7. Lindol ng Lindol: Huwag lumampas sa 8 degree;




FAQ

Q1: Ikaw ba ay isang tagagawa o isang negosyante?

A1: Kami ay isang nangungunang propesyonal na tagagawa.

Q2: Gaano katagal ang iyong cycle ng paghahatid?

A2: Nakasalalay ito sa iyong mga kinakailangan sa produkto at dami. Karaniwan, 5 hanggang 10 araw ng pagtatrabaho ay kinakailangan para sa paghahatid

Q3: Ano ang iyong serbisyo pagkatapos ng benta?

A3: Maaari naming sagutin ang mga katanungan ng mga gumagamit na malutas ang kanilang mga problema 24 oras sa isang araw, at magbigay ng komprehensibong suporta sa teknikal para sa lahat ng aming mga produkto kaagad.

Q4: Paano mo malulutas ang mga problema sa kalidad?

A4: Mangyaring magbigay ng detalyadong mga larawan ng mga problema sa kalidad. Ang aming mga kagawaran ng teknikal at kalidad ng inspeksyon ay susuriin ang mga ito. Magbibigay kami ng isang kasiya -siyang solusyon sa loob ng 2 araw.

Q5: Tumatanggap ka ba ng mga na -customize na serbisyo?

A5: Nagbibigay kami ng mga serbisyo ng OEM/ODM at maaaring mai -print ang iyong logo sa mga produkto. Ang aming propesyonal na koponan ng teknikal at sipi ay maaaring magbigay ng kasiya -siyang proyekto ayon sa iyong mga guhit at mga parameter.





Pabrika


Sertipiko




Mga Hot Tags: ZW7-40.5KV Mataas na Boltahe 3 Poles Lumipat 35KV H.V. Panlabas na vacuum circuit breaker, Tsina, tagagawa, tagapagtustos, pabrika, mababang presyo, kalidad, pinakabagong pagbebenta, advanced
Magpadala ng Inquiry
Impormasyon sa Pakikipag-ugnayan
Para sa mga katanungan tungkol sa low voltage switchgear, high voltage insulators, high voltage earthing switch o listahan ng presyo, mangyaring iwanan ang iyong email sa amin at makikipag-ugnayan kami sa loob ng 24 na oras.
X
Gumagamit kami ng cookies para mag-alok sa iyo ng mas magandang karanasan sa pagba-browse, pag-aralan ang trapiko sa site at i-personalize ang content. Sa paggamit ng site na ito, sumasang-ayon ka sa aming paggamit ng cookies. Patakaran sa Privacy
Tanggihan Tanggapin